Trilocale in vendita

Roma, Via Degli Aldobrandini - Lido Di Ostia Centro
€ 249.000
3 locali 3 locali
85 Mq 85 Mq
1 bagno 1 bagno

Trilocale in vendita

Roma, Via Degli Aldobrandini - Lido Di Ostia Centro

Descrizione annuncio

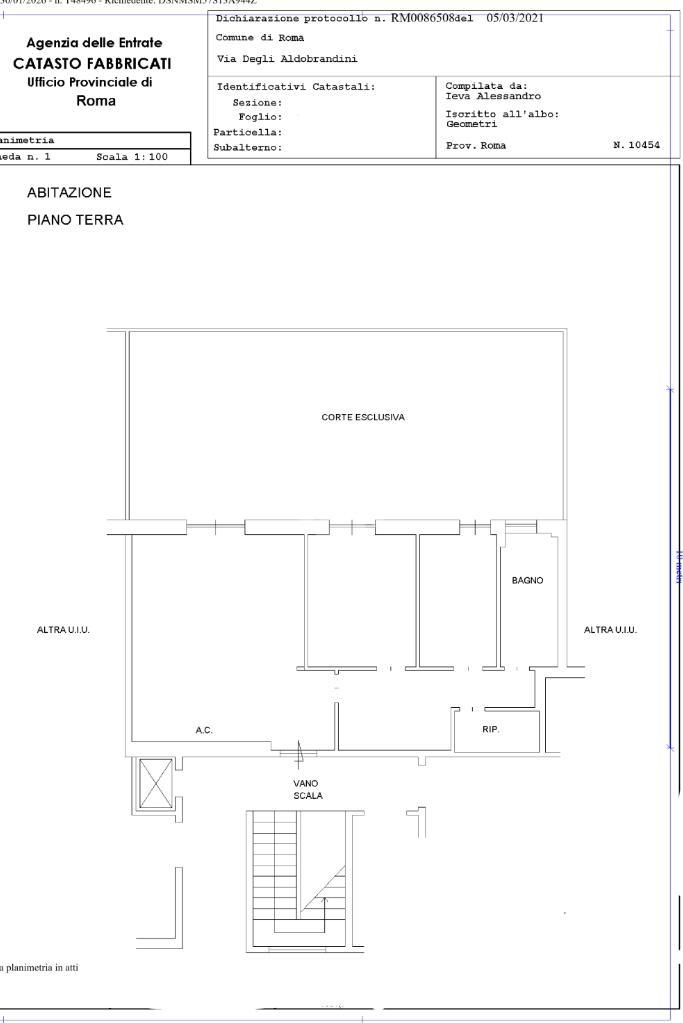
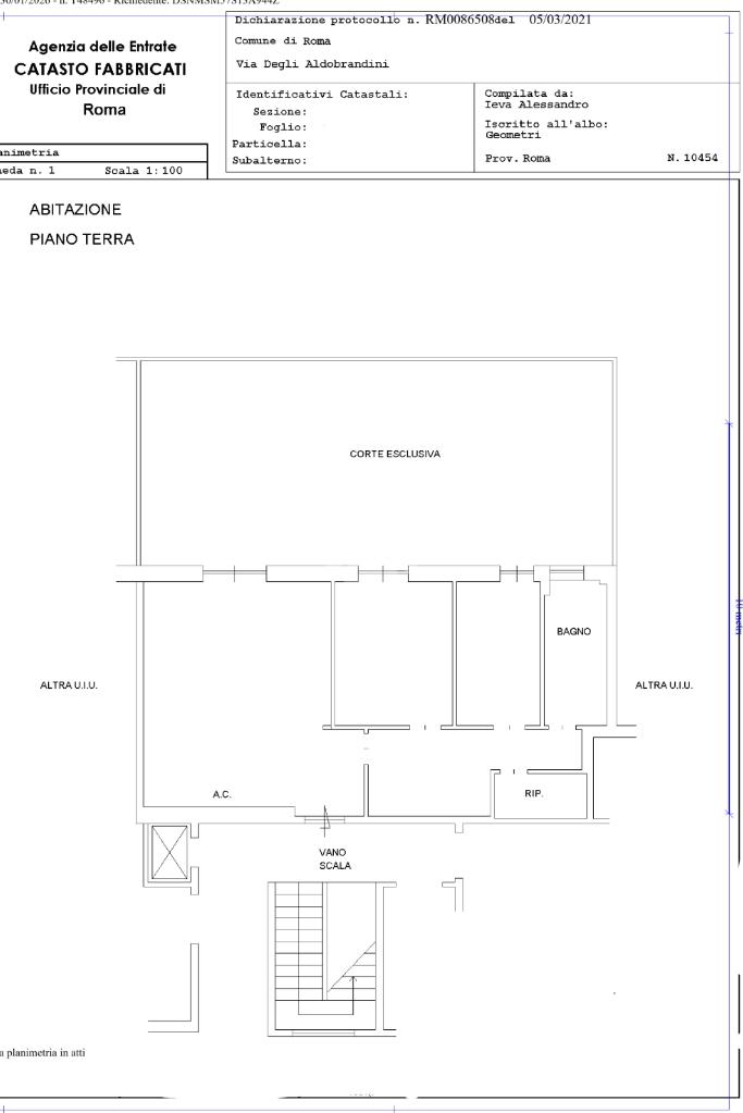
Al centro di Ostia proponiamo un appartamento sito al piano terra con giardino di 60 mq.

L'abitazione completamente ristrutturata è composta da un soggiorno con cucina a vista, camera, cameretta, bagno con doccia e ripostiglio (con possibilità di creare il secondo bagno). Nel giardino è presente una bellissima pergotenda che permette di ampliare la zona living.

La posizione centrale garantisce facile accesso a tutti i servizi essenziali, oltre a una comoda vicinanza al mare.

Mostra tutto

Nelle vicinanze

Trasporto pubblico Trasporto pubblico
Lido Centro
Lido Centro
710 m
Lido Nord
Lido Nord
1,2 Km
Duca di Genova/Mercato
Duca di Genova/Mercato
40 m
C.so Duca di Genova/Posta Centrale
C.so Duca di Genova/Posta Centrale
80 m
Ricariche auto elettriche Ricariche auto elettriche
Lido di Ostia Duca di Genova | EnelX
30 m
Lido di Ostia Toscanelli Aldobrandini | EnelX
240 m
Eneldrive Lungomare Paolo Toscanelli
350 m
Ostia Vannutelli | EnelX
370 m
Roma Regina Pacis | EnelX
400 m
Scuole Scuole
Scuola Media Giuliano da Sangallo
240 m
Scuola elementare Garrone
270 m
Giovanni Paolo II
440 m
Istituto Vincenzo Pallotti
510 m
Scuola parificata "Ugo Foscolo"
720 m
Farmacia Farmacia
Farmacia
460 m
Farmacia Giancarlo Matteazzi
780 m
Farmacia delle Azzorre
1,1 Km
Farmacia dr. Oddi
1,2 Km
Farmacia Di Carlo
1,3 Km
Ospedali Ospedali
Distretto di salute mentale A.S.L. Roma D
410 m
Pronto Soccorso Ospadale "Giovanni Battista Grassi"
2,0 Km
Ospedale Giovanni Battista Grassi
2,1 Km
Supermercati Supermercati
Tuodì
140 m
Supermercati
220 m
Todis
260 m
Carrefour Market
550 m
Natura Sì
640 m
Negozi Negozi
No-regress
0 m
Ostia Mini Shop
60 m
Pizza In Piazza
140 m
Oviesse
150 m
Donna
170 m
Bar Bar
Bar Raffaele
90 m
Bar - La Caffetteria
150 m
Sweet Kiss Ostia
150 m
berry cafe
160 m
Duca
170 m
Ristoranti Ristoranti
I Gastronauti
90 m
Aka sushi bar
110 m
Er Mattatoio
140 m
Ristorante Giapponese Sakura
170 m
Cicubo
180 m
Mostra tutto

Caratteristiche

Rif.:
61171969
Piano:
Terra con giardino di 5 con ascensore
Totale piani:
5
Posti auto:
1
Camere da letto:
2
Arredamento:
Assente
Mostra tutto
Prezzo Prezzo
€ 249.000
Rata mutuo Rata mutuo
€ 1.183 / mese
Proponi il tuo prezzoProponi il tuo prezzo

Classe Energetica

F
F
F
F
F
F
F
F
F
EP globale non rinnovabile:
138.43 kW h/m² anno
EP globale rinnovabile:
138.43 kW h/m² anno
EP invernale del fabbricato:
EP estiva del fabbricato:
Anno di costruzione:
1950
Riscaldamento:
Autonomo
Tipo impianto:
A radiatori
Tipo alimentazione:
Metano

Ti interessa visionare l'immobile?

Fissa un appuntamento  Fissa un appuntamento

Richiedi informazioni

Clicca su Leggi per aprire l'informativa
* Questi campi sono obbligatori

Calcola il tuo mutuo

Semplice e senza impegno
Anticipo

( % )
Mutuo

( % )

pochi semplici passi

inserisci i tuoi dati
Questionario completato
Grazie per aver richiesto un appuntamento senza impegno con un nostro Consulente del Credito e Assicurativo.

Hai inserito correttamente tutti i dati necessari e a breve riceverai una e-mail con un link da convalidare per inviare i tuoi dati.
Affiliato
Studio Lido Di Ostia Srl
Via Degli Aldobrandini , 3b 00121 Roma (RM)

Il nostro staff


  • Gianfranco Lo Cicero
    Affiliato

  • Luciano Aldo Dieli
    Responsabile

  • Alessandra Sechi
    Coordinatrice
Via Degli Aldobrandini , 3b 00121 Roma (RM)
Zona: Ostia Lido
Mostra su mappa
Orari: dal lunedì al venerdì dalle 09.00/13.00 - 16.00/20.00; il sabato 09.00/13.00
Affiliato
Studio Lido Di Ostia Srl
Via Degli Aldobrandini , 3b 00121 Roma (RM)

2026 Tecnocasa Franchising S.p.A. - P. IVA 08365160152 - Via Monte Bianco 60/A 20089 Rozzano (MI). Ogni agenzia ha un proprio titolare ed è autonoma. Privacy policy | Policy utilizzo | Cookie policy