Trilocale in vendita

Roma, Via Degli Aldobrandini - Lido Di Ostia Centro
€ 95.000
3 locali 3 locali
90 Mq 90 Mq
1 bagno 1 bagno

Trilocale in vendita

Roma, Via Degli Aldobrandini - Lido Di Ostia Centro

Descrizione annuncio

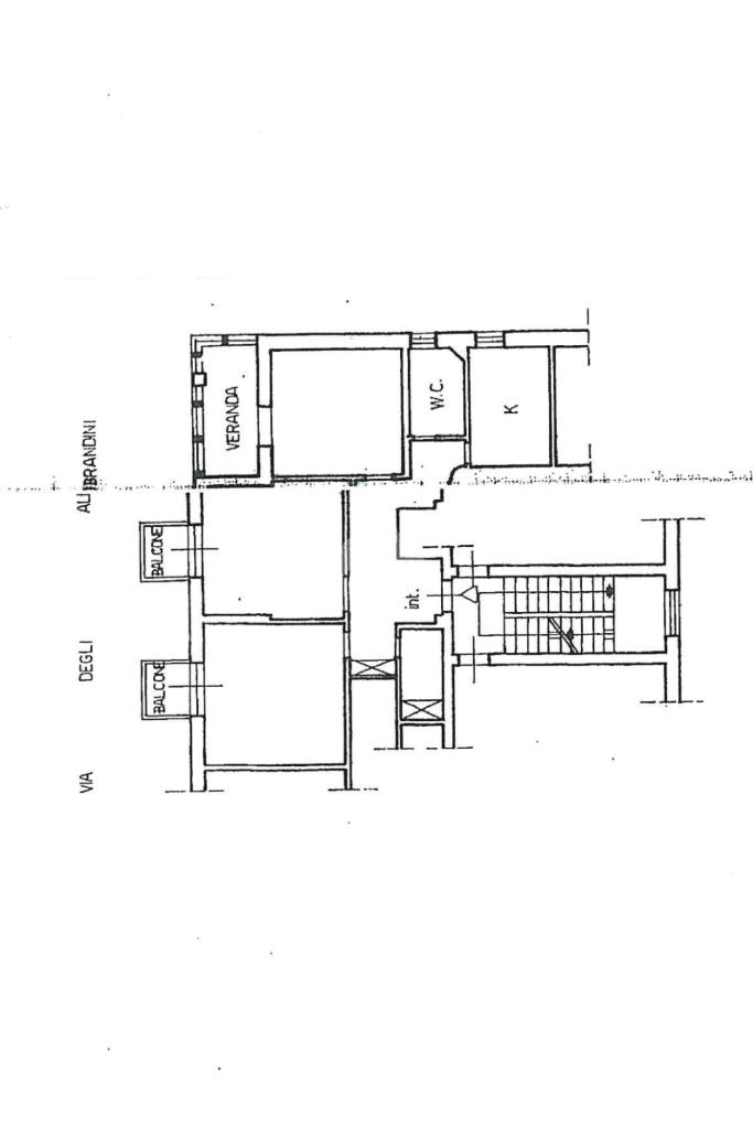
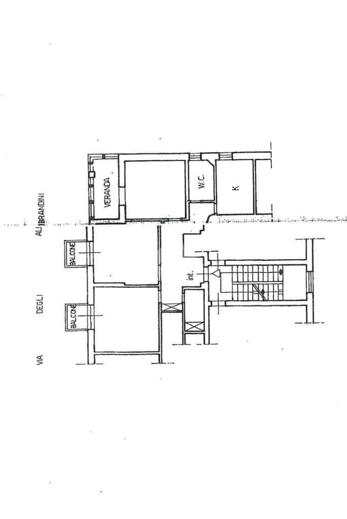
IN TRATTATIVA OSTIA CENTRO, proponiamo la NUDA PROPRIETA' di un appartamento trilocale a pochi passi dal mare e dall'Isola Pedonale.

L'appartamento in buono stato si compone da ingresso, soggiorno, due camere. disimpegno, cucina bitabile, bagno e veranda condonata. Usufruttuario 69 anni.

Su questo immobile è possibile effettuare l'acquisto con RISERVA DI NUDA PROPRIETA' GRAVATA DAL DIRITTO DI ABITAZIONE, possibilità acquisto con minimo anticipo di €. 40.000,00 e la restante parte con possibilità di rateazione in 10 anni.

Completano la casa due balconi.

VUOI VENDERE o AFFITTARE IL TUO IMMOBILE?

Grazie alla profonda conoscenza del mercato locale da oltre 34 ANNI, siamo in grado di effettuare una valutazione di mercato in termini precisi e tempestivi.

3 buoni ragioni per chiederci una consulenza immobiliare gratuita:

Relazione notarile sull'immobile,

Consulenza tecnico/urbanistica e catastale da un tecnico abilitato.

Stima immobiliare per vendita e locazione

Mostra tutto

Nelle vicinanze

Trasporto pubblico Trasporto pubblico
Lido Centro
Lido Centro
740 m
Lido Nord
Lido Nord
1,2 Km
Duca di Genova/Mercato
Duca di Genova/Mercato
90 m
C.so Duca di Genova/Posta Centrale
C.so Duca di Genova/Posta Centrale
110 m
Ricariche auto elettriche Ricariche auto elettriche
Lido di Ostia Duca di Genova | EnelX
70 m
Lido di Ostia Toscanelli Aldobrandini | EnelX
190 m
Eneldrive Lungomare Paolo Toscanelli
330 m
Ostia Vannutelli | EnelX
380 m
Roma Regina Pacis | EnelX
400 m
Scuole Scuole
Scuola Media Giuliano da Sangallo
240 m
Scuola elementare Garrone
280 m
Giovanni Paolo II
450 m
Istituto Vincenzo Pallotti
520 m
Scuola parificata "Ugo Foscolo"
760 m
Farmacia Farmacia
Farmacia
440 m
Farmacia Giancarlo Matteazzi
810 m
Farmacia delle Azzorre
1,1 Km
Farmacia dr. Oddi
1,2 Km
Farmacia Di Carlo
1,3 Km
Ospedali Ospedali
Distretto di salute mentale A.S.L. Roma D
400 m
Pronto Soccorso Ospadale "Giovanni Battista Grassi"
2,0 Km
Ospedale Giovanni Battista Grassi
2,1 Km
Supermercati Supermercati
Tuodì
180 m
Supermercati
260 m
Todis
300 m
Carrefour Market
570 m
Natura Sì
680 m
Negozi Negozi
No-regress
50 m
Ostia Mini Shop
110 m
Pizza In Piazza
130 m
Donna
190 m
Oviesse
190 m
Bar Bar
Bar Raffaele
40 m
berry cafe
110 m
Bar - La Caffetteria
130 m
Sweet Kiss Ostia
130 m
Duca
180 m
Ristoranti Ristoranti
I Gastronauti
50 m
Aka sushi bar
140 m
L'oro di Napoli
160 m
Ristorante Giapponese Sakura
160 m
Cicubo
160 m
Mostra tutto

Caratteristiche

Rif.:
61071661
Piano:
4 di 5 (Piano alto)
Balconi:
2
Camere da letto:
2
Arredamento:
Assente
Condizionamento:
Autonomo
Mostra tutto
Prezzo Prezzo
€ 95.000
Rata mutuo Rata mutuo
€ 448 / mese
Spese annue Spese annue
€ 720
Proponi il tuo prezzoProponi il tuo prezzo

Classe Energetica

G
G
G
G
G
G
G
G
G
EP globale non rinnovabile:
134.67 kW h/m² anno
EP globale rinnovabile:
1.02 kW h/m² anno
EP invernale del fabbricato:
EP estiva del fabbricato:
Anno di costruzione:
1957
Riscaldamento:
Autonomo
Tipo impianto:
A radiatori
Tipo alimentazione:
Metano

Ti interessa visionare l'immobile?

Fissa un appuntamento  Fissa un appuntamento

Richiedi informazioni

Clicca su Leggi per aprire l'informativa
* Questi campi sono obbligatori

Calcola il tuo mutuo

Semplice e senza impegno
Anticipo

( % )
Mutuo

( % )

pochi semplici passi

inserisci i tuoi dati
Questionario completato
Grazie per aver richiesto un appuntamento senza impegno con un nostro Consulente del Credito e Assicurativo.

Hai inserito correttamente tutti i dati necessari e a breve riceverai una e-mail con un link da convalidare per inviare i tuoi dati.
Affiliato
Studio Lido Di Ostia Srl
Via Degli Aldobrandini , 3b 00121 Roma (RM)

Il nostro staff


  • Gianfranco Lo Cicero
    Affiliato

  • Luciano Aldo Dieli
    Responsabile

  • Alessandra Sechi
    Coordinatrice
Via Degli Aldobrandini , 3b 00121 Roma (RM)
Zona: Ostia Lido
Mostra su mappa
Orari: dal lunedì al venerdì dalle 09.00/13.00 - 16.00/20.00; il sabato 09.00/13.00
Affiliato
Studio Lido Di Ostia Srl
Via Degli Aldobrandini , 3b 00121 Roma (RM)

2025 Tecnocasa Franchising S.p.A. - P. IVA 08365160152 - Via Monte Bianco 60/A 20089 Rozzano (MI). Ogni agenzia ha un proprio titolare ed è autonoma. Privacy policy | Policy utilizzo | Cookie policy